Ταξινόμηση
Close Sorting
Μοιραστείτε το
Close Filters
Κατάλογος ακινήτων
Πληροφορίες
Εκδόσεις
  Love Share etc
Ενοικιάστηκε
 
 
 
 
 
 
 
 
 
Αποθήκευση Κοινή Χρήση Εκτύπωση

758 Αθήνα επαγγελματικό κτίριο 3.800 τμ προς ενοικίαση

 
Κωδικός ακινήτου
128
Περιοχή
Αθήνα
Είδος Ακινήτου
Κτίριο
Τομέας χρήσης
Μικτή Χρήση
Τύπος κατασκευής
Αυτοτελές κτίριο
Όροφος
Ημιυπόγειο, Ισόγειο, Ημιώροφος, 1ος
Εμβαδόν
3.800 τ.μ.
Τιμή
Επικοινωνήστε (Ενοικιάστηκε)

Περιγραφή Ακινήτου

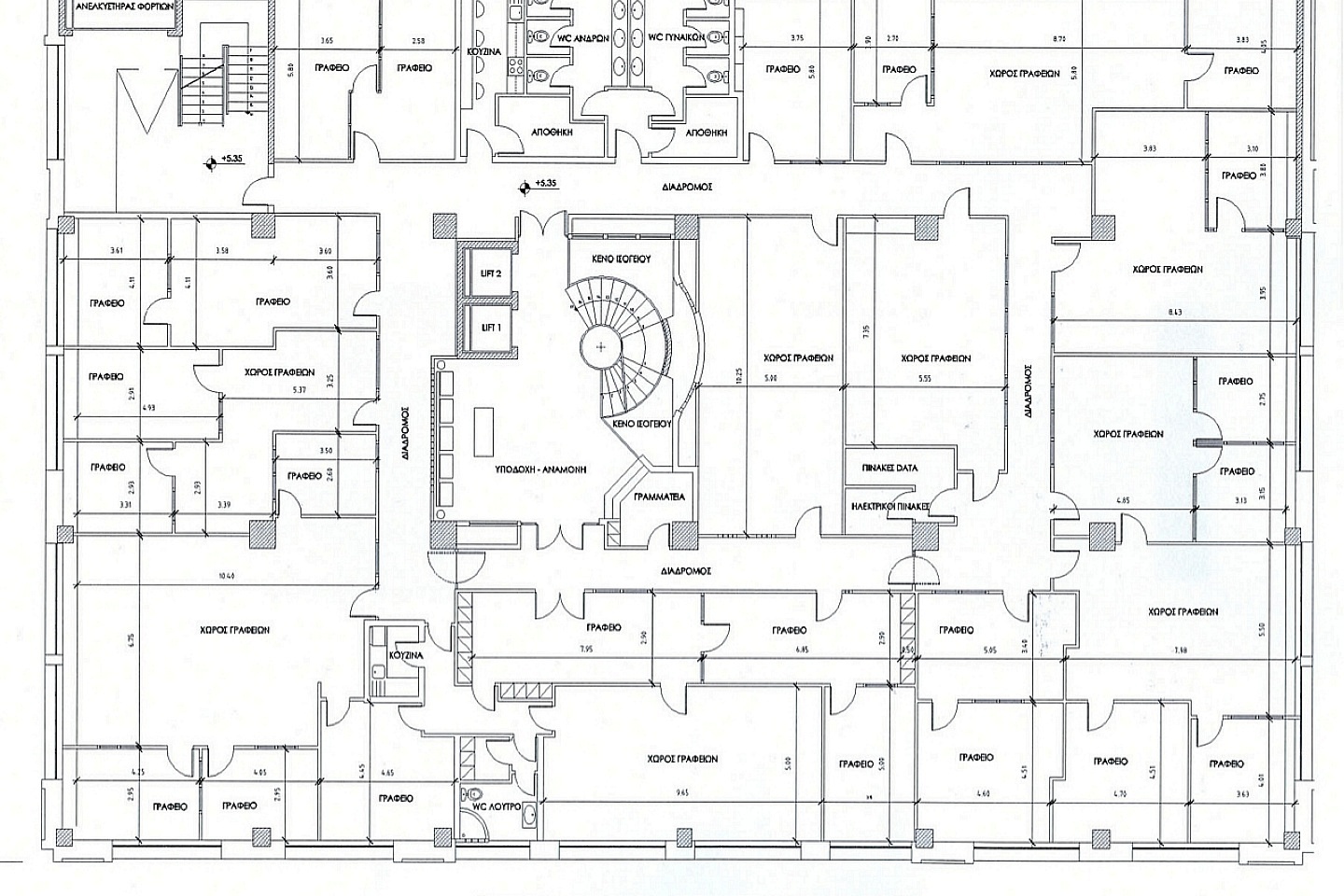
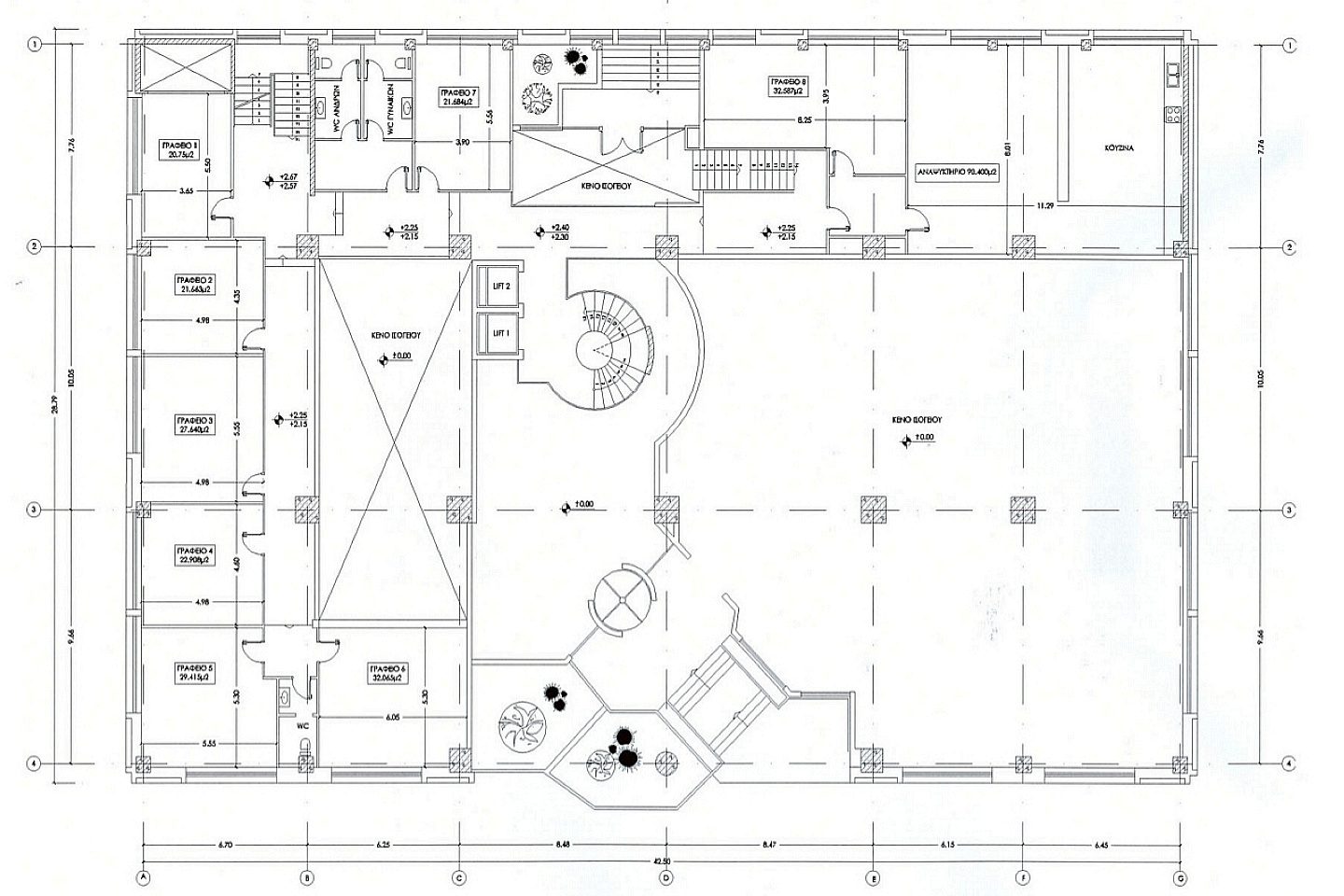
Αθήνα, κτίριο γραφείων με συνολική έκταση 3.800 τετραγωνικών συνολικά, το οποίο αποτελείται από τρία επίπεδα, ενοικιάζεται.

Το υπόγειο είναι 1.000 τετραγωνικών περίπου, με 20 θέσεις στάθμευσης και βοηθητικούς χώρους. Το ισόγειο είναι 1.150 τετραγωνικών, με ύψος 5 μέτρα περίπου. Διαθέτει μεγάλο φωτεινό χώρο υποδοχής, 2 ασανσέρ, μεγάλη στρογγυλή σκάλα η οποία επικοινωνεί με τους επάνω ορόφους. Επίσης διαθέτει έξοδο κινδύνου. Στον ημιώροφο υπάρχουν χώροι γραφείων 600 τετραγωνικών. Ακολουθεί ο πρώτος όροφος ο οποίος είναι 1.190 τετραγωνικών. Τα γραφεία είναι πλήρως ανακαινισμένα, με ψευδοροφές, χωρίσματα από γυψοσανίδες, αλουμίνια και γυαλί. Διαθέτουν όλες τις σύγχρονες παροχές, φωτισμό, καλωδίωση, εξαερισμό, κλιματισμό. Επίσης είναι ευήλια.

Το κτίριο βρίσκεται κοντά στην Εθνική Οδό Αθηνών Λαμίας και στη Λεωφόρο Αθηνών. Έχει πολύ καλή πρόσβαση, είναι κοντά σε συγκοινωνίες και metro. Είναι κατάλληλο για εταιρίες που θέλουν χώρους γραφείων αλλά και αποθήκες. Επίσης μπορεί να μισθωθεί τμήμα του κτιρίου.

Δείτε περισσότερα επαγγελματικά ακίνητα και βρείτε αυτό που ταιριάζει στις ανάγκες της επιχείρησης σας με μία επίσκεψη στο terraproperty.gr

Χαρακτηριστικά Ακινήτου

  • Φυσικός φωτισμός
  • Χώρος γραφείων
  • Κλιματισμός
  • Σύστημα Εξαερισμού
  • Γκαράζ
  • Δομημένη καλωδίωση
  • Ασανσέρ ατόμων
  • Ψευδοροφή
  • Κοντά σε στάση μετρό
  • Πολύ καλή πρόσβαση
Ζητήστε Πληροφορίες
Φόρμα Επικοινωνίας Ακινήτου

Δείτε Επίσης