Ταξινόμηση
Close Sorting
Μοιραστείτε το
Close Filters
Κατάλογος ακινήτων
Πληροφορίες
Εκδόσεις
  Love Share etc
Ενοικιάστηκε
 
 
 
 
 
 
 
Αποθήκευση Κοινή Χρήση Εκτύπωση

758 Μάνδρα βιομηχανική αποθήκη 2.200 τμ προς ενοικίαση

 
Κωδικός ακινήτου
441
Περιοχή
Μάνδρα
Είδος Ακινήτου
Αποθήκη
Τομέας χρήσης
Βιομηχανικό, Αποθήκες
Τύπος κατασκευής
Ισόγειο
Όροφος
Ισόγειο
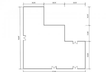
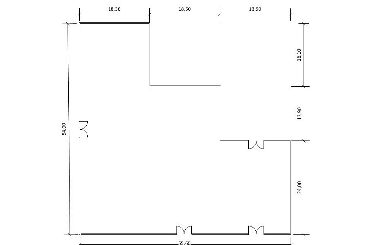
Εμβαδόν
2.200 τ.μ.
Σε οικόπεδο
5.800 τ.μ.
Τιμή
7.000 € (Ενοικιάστηκε)

Περιγραφή Ακινήτου

Μάνδρα Αττικής, βιομηχανική αποθήκη 2.200 τ.μ προς ενοικίαση. Το ακίνητο αποτελείται από έναν ισόγειο, αποθηκευτικό χώρο με μεγάλο ύψος 8,7 - 10 μέτρα και λίγα γραφεία περίπου 200 τετραγωνικών.

Διαθέτει βιομηχανικό δάπεδο σε άριστη κατάσταση, 4 πόρτες ρολά εκ των οποίων οι δύο καταλήγουν σε 2 ράμπες και οι άλλες δύο είναι επίπεδες με τον περιβάλλοντα χώρο, φυσικό και τεχνητό φωτισμό και πυρασφάλεια.

Τα γραφεία διαθέτουν ξεχωριστή είσοδο και είναι σε πολύ καλή κατάσταση. Ο περιβάλλων χώρος είναι προσεγμένος, ασφαλτοστρωμένος και περιφραγμένος. Η πρόσβαση είναι καλή για όλα τα μεταφορικά μέσα.

Το ακίνητο είναι κατάλληλο για αποθηκευτική χρήση αλλά και για παραγωγική μονάδα.

Δείτε περισσότερα επαγγελματικά ακίνητα και βρείτε αυτό που ταιριάζει στις ανάγκες της επιχείρησης σας με μία επίσκεψη στο terraproperty.gr

Χαρακτηριστικά Ακινήτου

  • Ράμπα εκφόρτωσης
  • Πόρτες Ηλεκτρικά Ρολλά
  • Πυρασφάλεια
  • Βιομηχανικό δάπεδο
  • Περιβάλλον χώρος με άσφαλτο
  • Πολύ καλή πρόσβαση
Ζητήστε Πληροφορίες
Φόρμα Επικοινωνίας Ακινήτου

Δείτε Επίσης